Дом, 125 м² - Объект 110697571
16 400 000 руб.
стоимость
В ипотеку 41 486 руб./мес.
Отправьте заявку
на ипотеку от АН Монолит,
чтобы снизить платеж
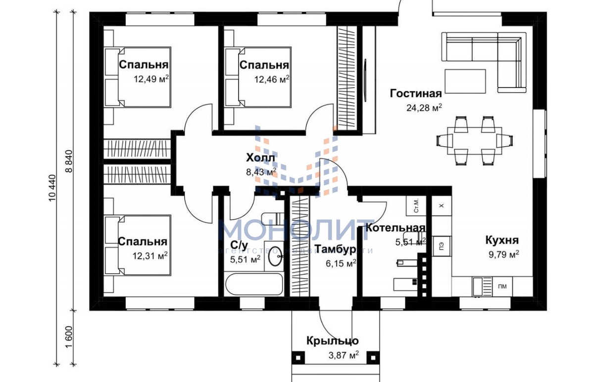
- Жилая площадь 44 кв.м
- Площадь кухни 30 кв.м
- Вид ремонта дизайнерский
- Тип дома Кирпичный
- Год постройки 2024
- Код объекта 110697571
Агент этого объекта
28 просмотров
Высокий спрос!
1 из
Смотреть панораму
Описание
Подходит под семейную ипотеку!"!
Продается одноэтажный дом в закрытом коттеджном поселке "Рига Лайф" поселок находится в 62км от МКАД по Новорижскому шоссе.
Дом построен на участке 6 соток, общая площадь дома 125кв.м .
Дом построен из монолитного полистиролбетона, это долговечный и энергоэффективный материал. Фасад- штукатурка.
Кровля-металлочерепица.
Крыша- утеплена по лагам 200 мм эковатой.
Фундамент-ростверк высота 60 см и монолитная плита 30 см.
Коммуникации: Газ в доме.
канализация- Септик. Скважина 60 метров.
Электричество 15 кВт.
Отделка:
В доме водяные теплые полы, материал пола керамогранит, стены обои и покраска, потолок натяжной, в доме установлена сантехника и освещение.
Участок:
Участок огорожен забором, вдоль фасадной части дома высажены хвойные деревья.
Инфраструктура:
Инфраструктура этого поселка продумана таким образом, что каждый будет жить в комфорте не только в своем доме, но и за его пределами:
- Закрытая забором территория.
- Имеется два заезда и выезда
- Асфальтированная и освещенная дорога
- Детская площадка на территории поселка
-Спортивная площадка
ТРАНСПОРТНАЯ ДОСТУПНОСТЬ:
До ж/д станции 10 мин на машине, до остановки Ядромино 1,2 км. (15 мин пешком). Экoлoгичeски чиcтый райoн, живопиcнoe место, рядом лес. Просмотр коттеджа по предварительной договоренности. Звоните! С удовольствием отвечу на все вопросы и пришлю видео нашего коттеджа.
Цена дома указана отделке White Box Подходит под льготную ипотеку.
Возможно купить дома с хорошим ремонтом, качественные и экологически чистые отделочные материалы ( возможно с мебелью) или под чистовую отделку.
Возможна покупка кирпичного дома от 100 до 167 кв. м. Возможно по договору подряда на Вашем участке. Предоставим содействие в получении ипотеки!
Арт. 110697571
Продается одноэтажный дом в закрытом коттеджном поселке "Рига Лайф" поселок находится в 62км от МКАД по Новорижскому шоссе.
Дом построен на участке 6 соток, общая площадь дома 125кв.м .
Дом построен из монолитного полистиролбетона, это долговечный и энергоэффективный материал. Фасад- штукатурка.
Кровля-металлочерепица.
Крыша- утеплена по лагам 200 мм эковатой.
Фундамент-ростверк высота 60 см и монолитная плита 30 см.
Коммуникации: Газ в доме.
канализация- Септик. Скважина 60 метров.
Электричество 15 кВт.
Отделка:
В доме водяные теплые полы, материал пола керамогранит, стены обои и покраска, потолок натяжной, в доме установлена сантехника и освещение.
Участок:
Участок огорожен забором, вдоль фасадной части дома высажены хвойные деревья.
Инфраструктура:
Инфраструктура этого поселка продумана таким образом, что каждый будет жить в комфорте не только в своем доме, но и за его пределами:
- Закрытая забором территория.
- Имеется два заезда и выезда
- Асфальтированная и освещенная дорога
- Детская площадка на территории поселка
-Спортивная площадка
ТРАНСПОРТНАЯ ДОСТУПНОСТЬ:
До ж/д станции 10 мин на машине, до остановки Ядромино 1,2 км. (15 мин пешком). Экoлoгичeски чиcтый райoн, живопиcнoe место, рядом лес. Просмотр коттеджа по предварительной договоренности. Звоните! С удовольствием отвечу на все вопросы и пришлю видео нашего коттеджа.
Цена дома указана отделке White Box Подходит под льготную ипотеку.
Возможно купить дома с хорошим ремонтом, качественные и экологически чистые отделочные материалы ( возможно с мебелью) или под чистовую отделку.
Возможна покупка кирпичного дома от 100 до 167 кв. м. Возможно по договору подряда на Вашем участке. Предоставим содействие в получении ипотеки!
Арт. 110697571
Записаться на просмотр
Заказать обратный звонок
Перезвоним в течение 5 минут
Вход в личный кабинет
Регистрация на сайте
Займет пару минут