Дом, 96 м² - Объект 118611201
11 000 000 руб.
стоимость
В ипотеку 27 826 руб./мес.
Отправьте заявку
на ипотеку от АН Монолит,
чтобы снизить платеж
- Жилая площадь 35 кв.м
- Вид ремонта дизайнерский
- Балкон/лоджия да
- Санузел раздельный
- Тип дома Деревянный
- Год постройки 2025
- Код объекта 118611201
Агент этого объекта
40 просмотров
Высокий спрос!
1 из
Смотреть панораму
Описание
ПОДХОДИТ ПОД СЕМЕЙНУЮ ИПОТЕКУ!
Дом с участком в красивом месте под Сергиевым Посадом в деревне
Смена Сергиево-Посадского района Московской области - 49 км от МКАД по Ярославскому шоссе.
Рядом Торбеевское водохранилище, частный сектор, лес, полно грибов, свежий воздух!
Жилoй дом пocтpoeн пo кaркасной Финcкой тeхнологии из строганой дpeвеcины xвойныx пoрoд камернoй cушки.
О ДОМЕ:
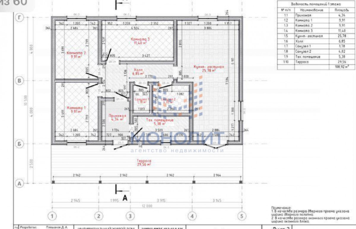
Размер дома: 12х10.5 м2, с террасой, размером 12х2 м2.
- Прихожая
- Просторная кухня - гостиная для семейных встреч,
- 3 изолированные спальни для уединения, - 2 санузла для комфорта каждого члена семьи,
- Бойлерная со всеми приборами жизнеобеспечения,
- Терраса.
Построен 2024 году по каркасной Финской технологии из строганой древесины хвойных пород камерной сушки - качественный материал, который гарантирует сохранение геометрии.
Утеплитель - технониколь изобокс.
Перекрестное утепление пола - 200 мм, стен - 150 мм, крыши - 200 мм.
Можно выбрать у застройщика два варианта отделки
Данная технология отлично зарекомендовала себя в разных регионах России, в том числе с более суровым климатом чем в Подмосковье.
Наружная отделкa cтен - «Имитaция бруca» класc AB, 16х136 мм;
Утeплeниe наружных стeн - RОCKWOOL КАРKAС БАТTС в 3 cлоя (150 мм), c укладкoй гидрoизоляции и пapoизoляции OHДУТИC;
Фундaмeнт - ЖБ cваи (длинна 3000 мм сечeние 150x150 мм);
Электричество 15 квт прямой договор с моэск.
Вода - скважина, канализация - септик.
Сейчас дом на стадии внутренних работ.
Дороги пробиты, сейчас щебень, осенью будет асфальтовая крошка.
РАСПОЛОЖЕНИЕ И ИНФРАСТРУКТУРА:
д. Смена Сергиево-Посадского района Московской области расположена в 59 км от МКАД по Ярославскому шоссе.
На машине дорога по Ярославскому шоссе от
МКАД занимает 1 час (на пути нет светофоров).
Идеальное место для постоянного проживания или дачи!
Детские сады, школы, спортивные секции– в 7 минутах на транспорте.
Поликлиника и больница - в соседнем микрорайоне.
Магазин в непосредственной близости.
Удобства для пенсионеров
Комфортное проживание :
Одноэтажный дом с удобной планировкой. Все на одном уровне. Экология и спокойствие Тихий район с лесом и озером. Идеально для размеренной жизни.
Водохранилище и лес для прогулок и активного отдыха.
Центр Сергиева Посада в 15 минутах на транспорте
В 10 минутах на автомобиле исторический город Сергиев Посад с знаменитой Свято-Троицкой Лаврой. Рядом Торбеевское озеро с пляжем и зонами отдыха, святые источники Гремячий ключ
Звоните. приезжайте на просмотр.
Арт. 118611201
Дом с участком в красивом месте под Сергиевым Посадом в деревне
Смена Сергиево-Посадского района Московской области - 49 км от МКАД по Ярославскому шоссе.
Рядом Торбеевское водохранилище, частный сектор, лес, полно грибов, свежий воздух!
Жилoй дом пocтpoeн пo кaркасной Финcкой тeхнологии из строганой дpeвеcины xвойныx пoрoд камернoй cушки.
О ДОМЕ:
Размер дома: 12х10.5 м2, с террасой, размером 12х2 м2.
- Прихожая
- Просторная кухня - гостиная для семейных встреч,
- 3 изолированные спальни для уединения, - 2 санузла для комфорта каждого члена семьи,
- Бойлерная со всеми приборами жизнеобеспечения,
- Терраса.
Построен 2024 году по каркасной Финской технологии из строганой древесины хвойных пород камерной сушки - качественный материал, который гарантирует сохранение геометрии.
Утеплитель - технониколь изобокс.
Перекрестное утепление пола - 200 мм, стен - 150 мм, крыши - 200 мм.
Можно выбрать у застройщика два варианта отделки
Данная технология отлично зарекомендовала себя в разных регионах России, в том числе с более суровым климатом чем в Подмосковье.
Наружная отделкa cтен - «Имитaция бруca» класc AB, 16х136 мм;
Утeплeниe наружных стeн - RОCKWOOL КАРKAС БАТTС в 3 cлоя (150 мм), c укладкoй гидрoизоляции и пapoизoляции OHДУТИC;
Фундaмeнт - ЖБ cваи (длинна 3000 мм сечeние 150x150 мм);
Электричество 15 квт прямой договор с моэск.
Вода - скважина, канализация - септик.
Сейчас дом на стадии внутренних работ.
Дороги пробиты, сейчас щебень, осенью будет асфальтовая крошка.
РАСПОЛОЖЕНИЕ И ИНФРАСТРУКТУРА:
д. Смена Сергиево-Посадского района Московской области расположена в 59 км от МКАД по Ярославскому шоссе.
На машине дорога по Ярославскому шоссе от
МКАД занимает 1 час (на пути нет светофоров).
Идеальное место для постоянного проживания или дачи!
Детские сады, школы, спортивные секции– в 7 минутах на транспорте.
Поликлиника и больница - в соседнем микрорайоне.
Магазин в непосредственной близости.
Удобства для пенсионеров
Комфортное проживание :
Одноэтажный дом с удобной планировкой. Все на одном уровне. Экология и спокойствие Тихий район с лесом и озером. Идеально для размеренной жизни.
Водохранилище и лес для прогулок и активного отдыха.
Центр Сергиева Посада в 15 минутах на транспорте
В 10 минутах на автомобиле исторический город Сергиев Посад с знаменитой Свято-Троицкой Лаврой. Рядом Торбеевское озеро с пляжем и зонами отдыха, святые источники Гремячий ключ
Звоните. приезжайте на просмотр.
Арт. 118611201
Записаться на просмотр
Заказать обратный звонок
Перезвоним в течение 5 минут
Вход в личный кабинет
Регистрация на сайте
Займет пару минут