Коттедж, 219.8 м² - Объект 126931235
25 530 000 руб.
стоимость
В ипотеку 64 581 руб./мес.
Отправьте заявку
на ипотеку от АН Монолит,
чтобы снизить платеж
- Жилая площадь 66 кв.м
- Вид ремонта требует ремонта
- Тип дома Кирпичный
- Год постройки 2024
- Код объекта 126931235
Агент этого объекта
55 просмотров
Высокий спрос!
1 из
Смотреть панораму
Описание
Продается Прекрасный КОТТЕДЖ под семейную ипотеку в 37 км от МКАДа!
О ДОМЕ:
* тёплый контур,
* фасад с утеплением готов,
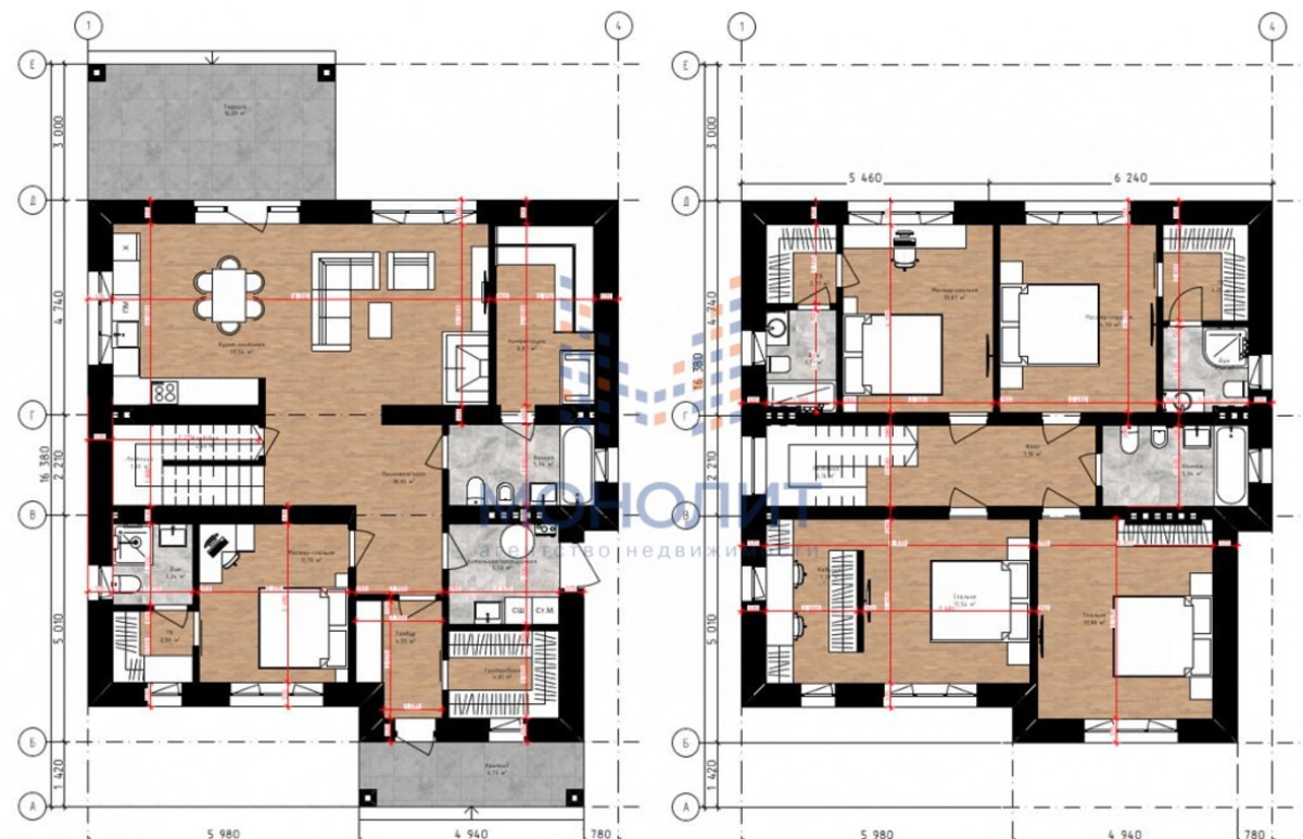
* 2 этажа, 219,8 кв м,
* 4 спальни (три мастер-спальни с гардеробом и санузлом, одна с гардеробом),
* рабочий кабинет,
* итого: 6 санузлов,
* гостиная - кухня и сауна на 1 этаже, постирочная, гардеробная,
* кирпич - керамический блок, утепленный и гидроизолированный фундамент,
* панорамные окна,
* эл-во 15 кВт,
* вода - скважина,
* канализация - станция биологической очистки,
* отопление газовое.
УЧАСТОК:
* 8,02 сотки,
* огораживают забором,
* выполнен заезд и вход на участок выполняется плиткой, парковочные места для двух автомобилей выполняется плиткой,
* высаживают хвойные деревья.
ИНФРАСТРУКТУРА:
* внутри Коттеджного поселка все дороги полностью асфальтируют, тротуары вымостят плиткой,
* на улицах установлены планируют установить световые фигуры, звучит легкая фоновая музыка, создающая сказочную атмосферу уюта,
* видео наблюдение, охрана,
* в КП уже построены детские игровые площадки, спортивные площадки, мангальные зоны и планируется строительство Коворкинга для жителей поселка, зона будет, как на фото,
* школа в 5 км от КП, школьный автобус от школы и от поселка (4 рейса в разное время для удобства учащихся),
* бассейн, детский сад, почта, магазины в 5 км и в 2,9 км от КП,
* остановка автобуса 1,6 км,
* подъезд асфальтирован, чистят круглогодично,
* от МКАДа до КП 37 км!
ДОКУМЕНТЫ:
* подходит под СЕМЕЙНУЮ ипотеку,
* продажа от юр лица,
* прописка возможна сразу после оформления дома,
* обременений нет.
Не упустите свой шанс приобрести Прекрасный КОТТЕДЖ под семейную ипотеку в 37 км от МКАДа по САМОЙ выгодной цене! Звоните прямо сейчас, чтобы узнать больше информации и договориться о просмотре. Мы гарантируем безопасную сделку и юридическую поддержку нашим клиентам. Поможем одобрить ипотеку с сниженной ставкой.
Арт. 126931235
О ДОМЕ:
* тёплый контур,
* фасад с утеплением готов,
* 2 этажа, 219,8 кв м,
* 4 спальни (три мастер-спальни с гардеробом и санузлом, одна с гардеробом),
* рабочий кабинет,
* итого: 6 санузлов,
* гостиная - кухня и сауна на 1 этаже, постирочная, гардеробная,
* кирпич - керамический блок, утепленный и гидроизолированный фундамент,
* панорамные окна,
* эл-во 15 кВт,
* вода - скважина,
* канализация - станция биологической очистки,
* отопление газовое.
УЧАСТОК:
* 8,02 сотки,
* огораживают забором,
* выполнен заезд и вход на участок выполняется плиткой, парковочные места для двух автомобилей выполняется плиткой,
* высаживают хвойные деревья.
ИНФРАСТРУКТУРА:
* внутри Коттеджного поселка все дороги полностью асфальтируют, тротуары вымостят плиткой,
* на улицах установлены планируют установить световые фигуры, звучит легкая фоновая музыка, создающая сказочную атмосферу уюта,
* видео наблюдение, охрана,
* в КП уже построены детские игровые площадки, спортивные площадки, мангальные зоны и планируется строительство Коворкинга для жителей поселка, зона будет, как на фото,
* школа в 5 км от КП, школьный автобус от школы и от поселка (4 рейса в разное время для удобства учащихся),
* бассейн, детский сад, почта, магазины в 5 км и в 2,9 км от КП,
* остановка автобуса 1,6 км,
* подъезд асфальтирован, чистят круглогодично,
* от МКАДа до КП 37 км!
ДОКУМЕНТЫ:
* подходит под СЕМЕЙНУЮ ипотеку,
* продажа от юр лица,
* прописка возможна сразу после оформления дома,
* обременений нет.
Не упустите свой шанс приобрести Прекрасный КОТТЕДЖ под семейную ипотеку в 37 км от МКАДа по САМОЙ выгодной цене! Звоните прямо сейчас, чтобы узнать больше информации и договориться о просмотре. Мы гарантируем безопасную сделку и юридическую поддержку нашим клиентам. Поможем одобрить ипотеку с сниженной ставкой.
Арт. 126931235
Записаться на просмотр
Заказать обратный звонок
Перезвоним в течение 5 минут
Вход в личный кабинет
Регистрация на сайте
Займет пару минут